• Wohnung

  • Wohnung
  • Geschoss
  • Haus
  • Karte

8Frei
3Reserviert
7Verkauft
23Wohnungen
3Stockwerk
35 - 72 m2Wohnfläche

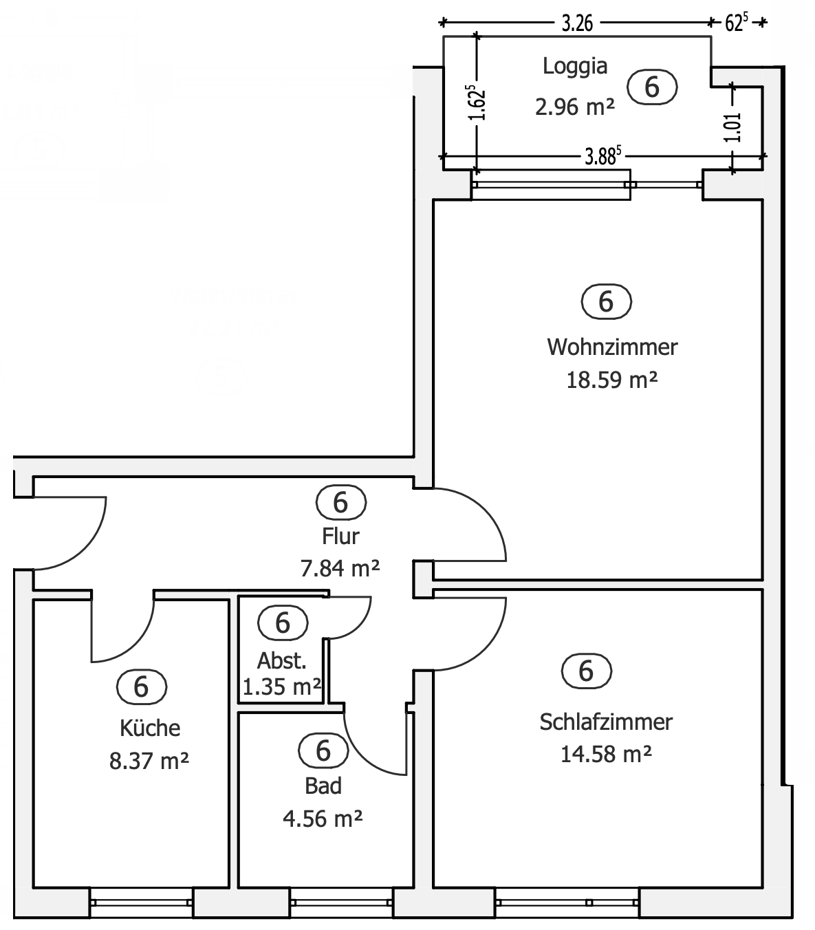
Haus 83 – Wohnung Nr. 06

VerfügbarkeitVerkauft
Gesamtfläche58.24 m2
TiefgaragenstellplätzeAuf Anfrage
KellerAuf Anfrage
Kaufpreis
Zu dem Kaufpreis kommt für den Käufer
noch die Provision von 3,57 % inkl. MwSt. hinzu.
Flur7.84 m2
Abstellraum1.35 m2
Bad4.56 m2
Schlafen14.58 m2
Wohnzimmer18.59 m2
Küche8.37 m2
Balkon2.96 m2
Gesamtfläche58.24 m2
Ihr Ansprechpartner

Thomas Friese

Immobilienmaklerin (DIA)

ZuHause Real Estate Group GmbH
Neckarstraße 144
70190 Stuttgart

Anfrage

Wir melden uns in Kürze bei Ihnen an

Anfrage - Building 3
*
*

Anfrage

Wir melden uns in Kürze bei Ihnen an

Anfrage - Building Main
*
*